***Ecklokal in Premium Lage – 15 Fach***
40215 Düsseldorf, Verkaufsfläche zum Kauf
Kontaktdaten
- NameHerr Hadi Bitar
- AnschriftAchenbachstr. 138
40237 Düsseldorf - Telefon
Objektdaten
- Objekt-ID166921656
- ObjekttypenEinzelhandel, Verkaufsfläche
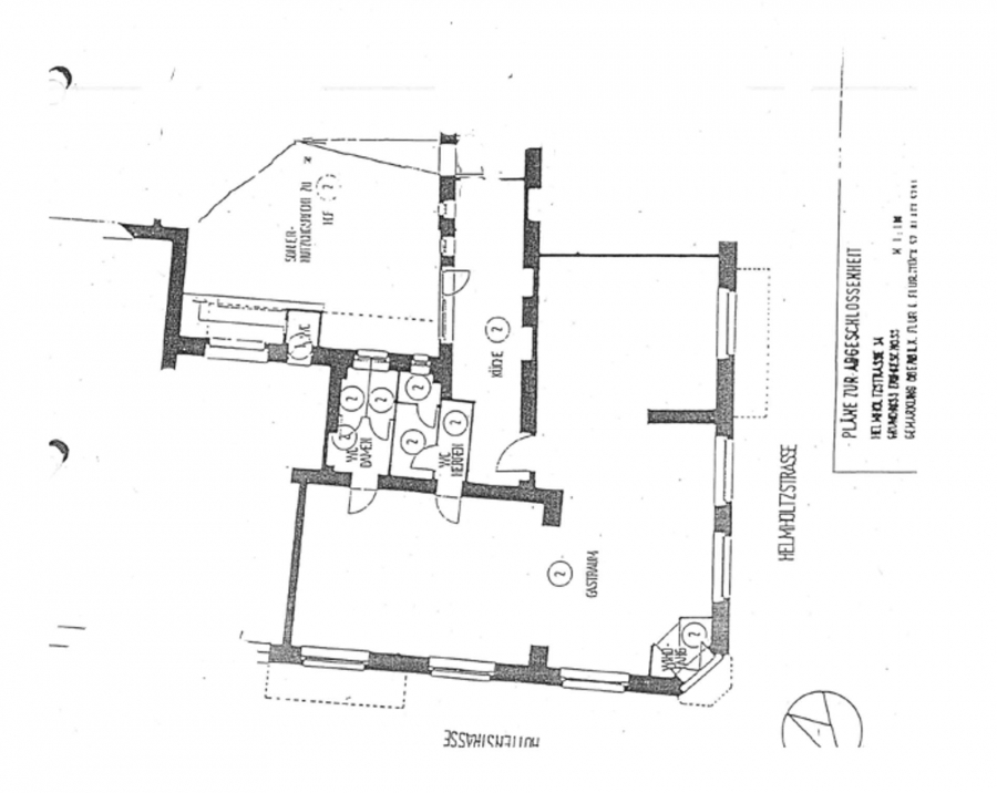
- AdresseHelmholtzstr. 34
40215 Düsseldorf - Gesamtfläche ca.280 m²
- Gewerbefläche ca.130 m²
- HeizungsartZentralheizung
- Wesentlicher EnergieträgerGas
- Baujahr1955
- Zustandgepflegt
- AusstattungStandard
- Käuferprovision3,57 inkl. MwSt.
- Mieteinnahmen (Ist)5.600,00 EUR pro Jahr
- Kaufpreis990.000 EUR
Energieausweis
- Energieausweiswird bei Besichtigung vorgelegt
Objektbeschreibung
Beschreibung
Das etablierte Restaurant in Friedrichstadt, Düsseldorf, überzeugt seit Jahren durch erfolgreiche Führung. Die Gastraum- und Nutzfläche umfassen ca. 280 m², funktional gestaltet. Ergänzt wird das Angebot durch eine großzügige Terrasse von ca. 80,00 m², die in den warmen Monaten als attraktives Zusatzangebot fungiert und den Außenbereich zum beliebten Aufenthaltsort macht.
Das Gebäude stammt aus dem Baujahr 1955 und befindet sich in einem insgesamt sehr gepflegten Zustand.
Die Kombination aus historischer Bausubstanz und nachhaltiger Pflege verleiht dem Objekt einen besonderen Charme und bietet eine solide Grundlage für den weiteren gastronomischen Betrieb.
Obwohl sich die Gaststätte in einem Mehrfamilienhaus befindet und damit in eine WEG eingebettet ist, ergeben sich aus der Teilungserklärung attraktive
Sonderrechte. Die Gastronomiefläche ist weitgehend autark von der WEG.
Darüber hinaus gibt es eine Genehmigung für die Nutzung des Hofes.
Sonstiges
Somit liegt die Nettomieteinnahme p.a. bei 67.200,00 € und der Faktor dieser Immobilie bei 15 Fach. Diese Immobilie stellt eine attraktive Investitionsmöglichkeit dar, die insbesondere durch die vorteilhafte Lage sowie das etablierte Nutzungskonzept überzeugt.
Der Mietvertrag ist auf 10 Jahre abgeschlossen.
Lage
Attraktive, gut angebundene Lage in Düsseldorf mit konstant hoher Frequenz durch Anwohner, Berufstätige und Besucher.
Lebendiges, gewachsenes Umfeld mit ausgewogener Mischung aus Wohn- und Geschäftsnutzung.
Öffentliche Verkehrsmittel sind fußläufig erreichbar und sorgen für eine schnelle, komfortable Anbindung an die Innenstadt sowie umliegende Stadtteile.
Zahlreiche Dienstleister, Einzelhandelsangebote und Gastronomiebetriebe in direkter Umgebung erhöhen die Aufenthaltsqualität und beleben den Standort zusätzlich.
Flughafen 20 min | Fernbahnhof 5 min | Autobahn 10 min | Bus 1 min











