*WUNDERSCHÖNE MAISONETTE WOHNUNG* – BEZUGSFREI AM VOLKSGARTEN
40227 Düsseldorf, Maisonettewohnung zum Kauf
Kontaktdaten
- NameHerr David Ziegler
- AnschriftAchenbachstr. 138
40237 Düsseldorf - Mobil
Objektdaten
- Objekt-ID167231662
- ObjekttypenMaisonettewohnung, Wohnung
- AdresseOberbilker Allee 321
40227 Düsseldorf - Etage4
- Etagen im Haus4
- Wohnfläche ca.125,91 m²
- Zimmer4
- Schlafzimmer3
- Badezimmer1
- KücheEinbauküche
- HeizungsartEtagenheizung
- Wesentlicher EnergieträgerGas
- Baujahr1906
- Zustandgepflegt
- AusstattungStandard
- Außenstellplatz15.000 EUR (Anzahl: 1)
- Käuferprovision2,38 % inkl. MwSt.
- Kaufpreis465.000 EUR
Ausstattung / Merkmale
- ✓ Einbauküche
- ✓ Keller
Energieausweis
- EnergieausweistypBedarfsausweis
- Ausstellungsdatumnach dem 1.5.2014
- Baujahr lt. Energieausweis1906
- PrimärenergieträgerGas
- Endenergiebedarf197,00 kWh/(m²·a)
- EnergieeffizienzklasseF
Objektbeschreibung
Beschreibung
Diese schön renovierte 4 Zimmer Maisonette-Wohnung liegt zentral in Düsseldorf Oberbilk gelegen.
Die bekannte Mitsubishi-Electric-Halle ist direkt nebenan.
Die separate große Küche bietet Platz zum Kochen, sowie für einen Esstisch.
In der Wohnung ist eine Gas-Etagenheizung verbaut.
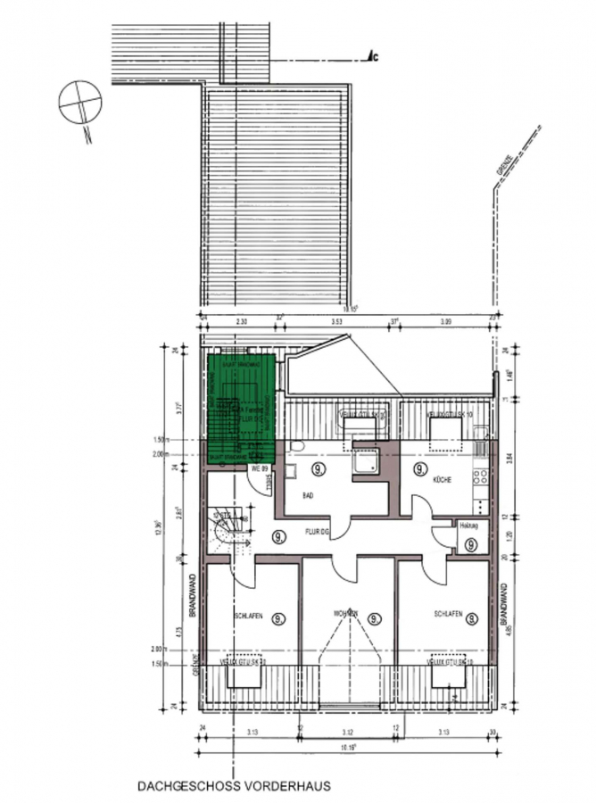
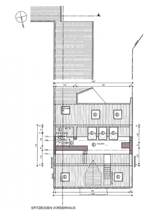
Im unteren Bereich der Wohnung befinden sich 3 Zimmer, Küche und Bad. Der obere Bereich mit einem weiteren Zimmer ist aktuell nicht als Wohnraum genehmigt und müsste dementsprechend nachgenehmigt werden.
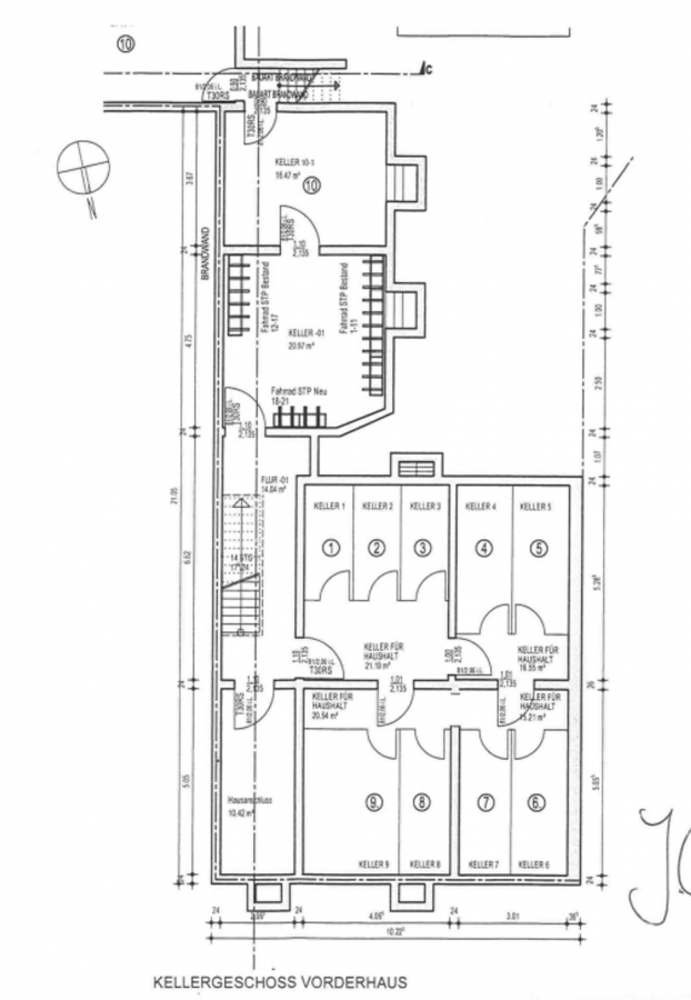
Zu der Wohnung gehört ein Kellerabteil.
Ausstattung
Zu der Ausstattung des Hauses und der Wohnung gehört:
- 4 Zimmer Maisonette-Wohnung
- ca. vor 5 Jahren frisch renoviert
- doppeltverglaste Kunststofffenster
- Gas-Etagenheizung
- mit Stellplatz im Innenhof
- Direkte Anbindung an den HBF
- gute Wohnungsgröße zur Vermietung an Studenten oder Familien
- aktuell leerstehend
- mit Kellerabteil
Sonstiges
Wenn Sie an dem Objekt interessiert sind, senden Sie uns bitte eine Anfrage über den Button "E-Mail".
Wir melden uns schnellstmöglich mit weiteren Infomationen bei Ihnen.
Lage
Die Liegenschaft befindet sich im Stadtteil Oberbilk. Dieses Gebiet ist mit den Stadtteilen Flingern-Süd sowie Bilk benachbart.
Die bekannte Mitsubishi Elektric Halle befindet sich unweit des Objektes. In der unmittelbaren Umgebung befindet sich ein breites Angebot an Geschäfte des täglichen Bedarfs.
Der öffentliche Personen- und Nahverkehr ist innerhalb von zwei Gehminuten erreichbar.




















