-I| BEST:INVEST || 4 ETW auf 1 Schlag || CITY-APPARTEMENTS T |I-
40215 Düsseldorf, Wohnung zum Kauf
Kontaktdaten
- NameHerr Ivan Schirm
- AnschriftAchenbachstr. 138
40237 Düsseldorf - Mobil
Objektdaten
- Objekt-IDIVI-SR18P-WE05091011-819024
- ObjekttypWohnung
- AdresseScheurenstr. 18
40215 Düsseldorf - Etagen im Haus6
- Wohnfläche ca.274 m²
- HeizungsartEtagenheizung
- Wesentlicher EnergieträgerGas
- Baujahr1953
- Zustandgepflegt
- AusstattungStandard
- Käuferprovision2,38 inkl. MwSt.
- Mieteinnahmen (Ist)1.936,00 EUR pro Jahr
- Kaufpreis999.999 EUR
Energieausweis
- Energieausweiswird bei Besichtigung vorgelegt
Objektbeschreibung
Beschreibung
Projekt City Appartements
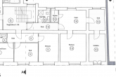
In dem beliebten Stadtteil Friedrichstadt stehen vier sehr gut geschnittene 3-Zimmerwohnungen mit besten Voraussetzungen für die Vermietung oder Eigenbedarf zum Verkauf.
- 1 - 3. OG
- Straßen-& Hofseite
- 66 - 70 m2
- 3-Zimmerwohnung
- vermietet für € 1.936,00 kalt
Für die Bestandsmieter besteht ein achtjähriger Sonderkündigungsschutz auf Eigenbedarf, daher ist die Einheit mittelfristig primär für Kapitalanleger von Interesse.
Ausstattung
- verkehrsberuhigte und grüne Seitenstraße nur einen Steinwurf von Königsallee, Immermannstraße & Hauptbahnhof entfernt
- gepflegtes Haus mit regelmäßen Instandhaltungsmaßnahmen
- ideale Raumaufteilung
- doppelverglaste Wärmedämmfenster
- Nahgelegene Einkaufsmöglichkeiten, Gastronomie & Parks
- Beste ÖPNV-Anbindung
- Attraktive Konditionen
Sonstiges
Unsere Anzeige hat Ihr Interesse geweckt?
Sehr gerne lassen wir Ihnen ein aussagekräftiges Exposé mit allen Zahlen und Fakten zukommen. Die Vereinbarung eines individuellen Besichtigungstermins ist aktuell auch kurzfristig möglich.
Zögern Sie bitte nicht und schreiben oder rufen Sie uns direkt an! Wir stehen Ihnen jederzeit mit Rat und Tat zur Verfügung!
Lage
Die Wohnung zeichnet sich durch seine ruhige und zugleich zentrale Lage in Friedrichstadt aus.
Shoppen, Flanieren & Spazieren
Direkt um die Ecke findet man zahlreiche Geschäfte des täglichen Bedarfs wie Supermärkte, Bäcker, Friseure u.v.m. Mit der beliebten Einkaufsstraßen Schadowstraße steht Ihnen ein breites Einzelhandelangebot in der direkten Nachbarschaft zur Verfügung und lädt zum Flanieren ein. Für ein reichhaltiges und abwechslungsreiches gastronomisches Angebot sorgen die zahlreichen Restaurants & Bars rund um die Immermann- & Oststraße.
Um die Seele baumeln zu lassen, erreichen Sie in wenigen Minuten mit dem Rheinufer und der Königsallee die grüne Lunge der Innenstadt.
Von der Haltestelle Stresemannstraße und nicht zuletzt Hauptbahnhof gelangt man mit öffentlichen Verkehrsmitteln zügig in alle Himmelsrichtungen der Stadt und macht ein Auto fast überflüssig. Hierbei stehen sowohl Stadtbusse wie auch Straßen- und U-Bahnen zur Verfügung.















