-I| TOP-CHANCE || Attraktive 3-Zi-Whg mit Balkonen || DÜSSELTALER HEIM |I-
40237 Düsseldorf, Etagenwohnung zum Kauf
Kontaktdaten
- NameHerr Ivan Schirm
- AnschriftAchenbachstr. 138
40237 Düsseldorf - Mobil
Objektdaten
- Objekt-IDIVI-GBA130A-WE09-418790471
- ObjekttypenEtagenwohnung, Wohnung
- AdresseGrafenberger Allee 130 a
40237 Düsseldorf - Etage4
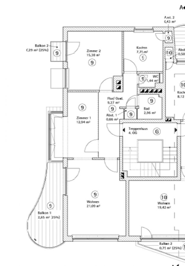
- Etagen im Haus5
- Wohnfläche ca.75 m²
- Zimmer3
- Schlafzimmer2
- Badezimmer1
- Wesentlicher EnergieträgerFernwärme
- Baujahr1953
- Zustandteil-/vollrenoviert
- AusstattungStandard
- Käuferprovision2,98 inkl. MwSt.
- Kaufpreis379.000 EUR
Ausstattung / Merkmale
- ✓ Balkon/Terrasse
- ✓ Gäste-WC
- ✓ Keller
Energieausweis
- Energieausweiswird bei Besichtigung vorgelegt
Objektbeschreibung
Beschreibung
Projekt DÜSSELTALER HEIM
In dem repräsentativen und gefragten Teil Düsseltals steht eine sehr schön geschnittene 3-Zimmer-Wohnung zum Verkauf.
Das geräumige & lichtdurchflutete Wohnzimmer grenzt mit der Fensterfront an die Grafenberger Allee. Längsseitig gelangt man auf den großen Balkon, der einen schönen Blick über die Seitenstraße Aachenbachstraße bietet. Das Schlaf-& Kinderzimmer sind ebenfalls zur Seitenstraße gewandt und besitzen einen kleineren Balkon. Zur ruhigen Hofseite weist die Küche. Neben dem Badezimmer zählt ebenfalls ein Gäste-WC zur Eigentumswohnung.
Die Wohnung steht leer und ist damit sowohl für Eigennutzer wie auch Kapitalanleger von Interesse.
- 4. Etage
- 75m2
- 3-Zimmer
- 2 Balkone
- 2 x Abstellkammer
- Gäste WC
- leerstehend
- frisch renoviert
Laufende Modernisierungsmaßnahme des Gemeinschaftseigentums
- Frischer Dachgeschossausbau zu Wohnraum
- Teilneueindeckung
- Doppeldämmung des Daches
- Erneuerung der Luftschächte
- Neue 3-fach verglaste Dachfenster
- RMA-Anlage
- Kosten zu Lasten des Dachgeschoss-Eigentümers
- Verbesserung der Energieeffizienz
- Entfernung & Austausch aller Gasthermen durch Durchlauferhitzer
Ausstattung
- repräsentative Lage
- großer & kleiner Balkon
- ideale Raumaufteilung
- Wärmegeschütze Doppelverglasung
- gepflegter Hausflur & Kellerräume
- Nahgelegene Einkaufsmöglichkeiten, Gastronomie & Parks
- Beste ÖPNV-Anbindung
Sonstiges
Sehr gerne lassen wir Ihnen ein aussagekräftiges Exposé mit allen Zahlen und Fakten zukommen. Die Vereinbarung eines individuellen Besichtigungstermins ist aktuell auch kurzfristig möglich.
Zögern Sie bitte nicht und schreiben oder rufen Sie uns direkt an! Wir stehen Ihnen jederzeit mit Rat und Tat zur Verfügung!
Lage
Die Wohnung zeichnet sich durch eine ideale Lage im beliebten Stadtteil Düsseltal an der Ecke Achenbachstr./ Grafenberger Allee aus.
Shoppen, Flanieren & Spazieren
Direkt um Ecke finden man Geschäfte des täglichen Bedarfs. Mit der beliebten Einkaufsstraße Rethelstraße steht Ihnen ein breites Einzelhandelangebots in der Nachbarschaft zur Verfügung und lädt zum Flanieren ein. Für ein reichhaltiges gastronomisches Angebot sorgen die zahlreichen Restaurants & Bars um die Ackerstraße.
Um die Seele im Grünen baumeln zu lassen, erreichen Sie in weniger Minuten den Hanielpark und den Schillerplatz.
Von der Haltestelle Lindemannstraße gelangt man mit öffentlichen Verkehrsmitteln innerhalb weniger Minuten ins Stadtzentrum und macht ein Auto fast überflüssig. Hierbei stehen sowohl Stadtbusse (737, NE2, NE5) wie auch Straßenbahnen (U71, U72, U73, U83) zur Verfügung.


















