GÜNSTIGE KAPITALANLAGE – 2 ZI WOHNUNG IN ANGERMUND
40489 Düsseldorf, Etagenwohnung zum Kauf
Kontaktdaten
- NameHerr David Ziegler
- AnschriftAchenbachstr. 138
40237 Düsseldorf - Mobil
Objektdaten
- Objekt-ID167230679
- ObjekttypenEtagenwohnung, Wohnung
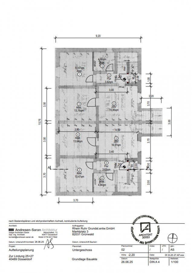
- AdresseZur Lindung 25-27
40489 Düsseldorf - Etage1
- Etagen im Haus2
- Wohnfläche ca.55,01 m²
- Zimmer2
- Schlafzimmer1
- Badezimmer1
- HeizungsartZentralheizung
- Wesentlicher EnergieträgerGas
- Baujahr1937
- Zustandgepflegt
- AusstattungStandard
- Statusvermietet
- Käuferprovision2,98 % inkl. MwSt.
- Kaufpreis145.000 EUR
Ausstattung / Merkmale
- ✓ Balkon/Terrasse
- ✓ Garten/Gartennutzung
- ✓ Keller
Energieausweis
- EnergieausweistypVerbrauchsausweis
- Ausstellungsdatumnach dem 1.5.2014
- Baujahr lt. Energieausweis1937
- PrimärenergieträgerGas
- Endenergieverbrauch154,00 kWh/(m²·a)
- EnergieeffizienzklasseE
Objektbeschreibung
Beschreibung
Zum Verkauf steht eine gepflegte 2 Zimmer Wohnung mit einem Balkon zum grünen Gemeinschaftsgarten hin ausgerichtet.
Die Wohnung ist langjährig vermietet und wurde stets gut gepflegt. Das Bad ist bereits weis gefließt und erst einige Jahre alt.
Durch die Teilung des Hauses bekommen die Mieter einen 8 jährigen Kündigungsschutz, daher ist die Wohnung vorerst als Kapitalanlage geeignet.
Der Gemeinschaftsgarten ist durch alle Mieter nutzbar und separat zugänglich.
Trotz der angrenzenden Bahnlinie ist die Vermietbarkeit sehr gut, da Angermund durch seine Nähe zur Natur, sowie Anbindung zur Stadt zu einer sehr beliebten Wohnlagen zählt.
Ausstattung
Die Wohnung ist in einem gepflegten bewohnten Zustand.
Die Liegenschaft wurde 1937 erbaut.
Zur Ausstattung des Hauses und der Wohnung gehört:
- Balkon ins Grüne
- doppeltverglaste Kunststofffenster
- 2 Zimmer Wohnung
- im 1.OG
- weis gefließtes Bad mit Badewanne
- mit großem Gemeinschaftsgarten
- 6 Wohnungen im Haus
- Gas-Zentralheizung von 2000
- mit Kellerabteil
- mit Waschküche
- direkte ÖPNV Anbindung nach Düsseldorf und Duisburg
Sonstiges
Wenn Sie an dem Objekt interessiert sind, senden Sie uns bitte eine Anfrage über den Button "Nachricht".
Wir melden uns schnellstmöglich mit weiteren Infomationen bei Ihnen.
Lage
Das Objekt liegt im Stadtteil Düsseldorf Angermund, im Norden von Düsseldorf.
Der öffentliche Personen- und Nahverkehr ist in wenigen Geh-Minuten zu erreichen. Kindergärten, Schulen
und Geschäfte des täglichen Bedarfs sind in unmittelbarer Nähe zu finden. In wenigen Fahrminuten erreichen
Sie den Düsseldorf Flughafen über die Bundesstraße 8, diese führt Sie ebenfalls in die Innenstadt von
Düsseldorf.























