*IM PAKET SPAREN* – 3 GÜNSTIGE WOHNUNGEN IM ZENTRUM
40215 Düsseldorf, Etagenwohnung zum Kauf
Kontaktdaten
- NameHerr David Ziegler
- AnschriftAchenbachstr. 138
40237 Düsseldorf - Mobil
Objektdaten
- Objekt-ID167050379
- ObjekttypenEtagenwohnung, Wohnung
- AdresseFürstenwall 196
40215 Düsseldorf - Etage1
- Etagen im Haus5
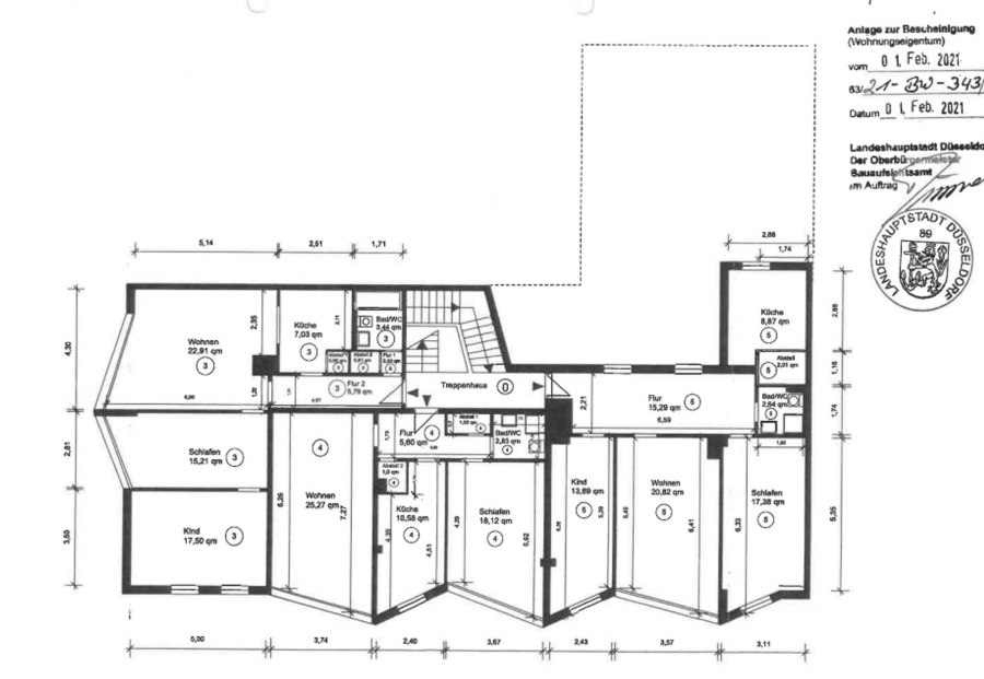
- Wohnfläche ca.219,29 m²
- Zimmer8
- Schlafzimmer5
- Badezimmer3
- HeizungsartZentralheizung
- Baujahr1960
- Letzte Modernisierung2022
- Zustandgepflegt
- AusstattungStandard
- Statusvermietet
- Käuferprovision2,38 % inkl. MwSt.
- Hausgeld959,10 EUR
- Kaufpreis665.000 EUR
Ausstattung / Merkmale
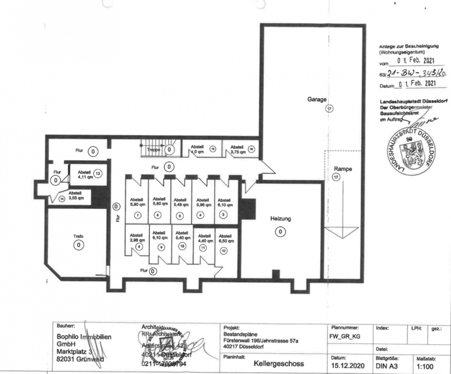
- ✓ Keller
Energieausweis
- EnergieausweistypBedarfsausweis
- Ausstellungsdatumnach dem 1.5.2014
- Baujahr lt. Energieausweis1960
- PrimärenergieträgerErdgas leicht
- Endenergiebedarf114,00 kWh/(m²·a)
- EnergieeffizienzklasseD
Objektbeschreibung
Beschreibung
Verkauft wird ein spannendes Wohnungspaket bestehend aus 3 Einheiten alle im 1.OG.
Das Haus ist massiv gebauten und befindet sich zentral in Düsseldorf Friedrichstadt.
Die 3 Wohnungen sind grundrisstechnisch gut aufgeteilt und die miesten Zimmer gehen vom Flur ab.
Da sich alle Wohnungen auf der ersten Etage befinden und nebeneinander liegen, könnte man diese später nach Auszug der Mieter auch zusammenlegen.
Durch die Nähe zur Innenstadt ist diese Lage sowohl bei Mietern als auch bei Investoren sehr beliebt.
Durch die Aufteilung des Hauses bekommen die Mieter einen 8 jährigen Kündigungsschutz. Daher sind die Wohnungen vorerst als Kapitalanlage geeignet.
Ausstattung
Die Wohnungen befinden sich in einem für das Baujahr typischen und bewohnten Zustand.
Eckdaten & Vorteile im Überblick:
- 3 Wohnungen im Paket
- günstiger qm-Preis mit 3.000€/qm
- Zusammenlegung möglich
- doppelverglaste Kunststofffenster
- Gas-Zentralheizung & Durchlauferhitzer
- Bodenbelag Laminat
- helle Wohnungen
- Treppenhaus gestrichen 2022
- Hausfassade gestrichen 2022
- Kellerraum vorhanden
Sonstiges
Bei Interesse senden Sie uns bitte eine Anfrage über den Button "Nachricht".
Wir melden uns zeitnah bei Ihnen.
Vielen Dank.
Lage
Friedrichstadt liegt südlich im Stadtgebiet, die benachbarten Stadtteile sind unter anderem Bilk sowie Unterbilk, diese Stadtteile erfreuen sich ebenfalls wie Friedrichstadt bester Beliebtheit.
Die Lage ist als absolut zentral zu bezeichnen, Sie erreichen in wenigen Minuten die begehrte Einkaufsstraße Königsallee sowie die Altstadt Düsseldorfs.
Auch der Medienhafen ist nahegelegen und bietet eines der Highlights von Düsseldorf.
Der ÖPNV sowie Geschäfte des täglichen Bedarfs sind in unmittelbarer Nähe vorzufinden. Ärzte, Schulen, Kindergärten sind in wenigen Minuten erreichbar.



























