Zentral gelegene 3-Zimmer-Wohnung mit Balkon – Willkommen in Oberbilk
40227 Düsseldorf, Etagenwohnung zum Kauf
Kontaktdaten
- NameHerr Hadi Bitar
- AnschriftAchenbachstr. 138
 40237 Düsseldorf
- Telefon
Objektdaten
- Objekt-ID162426464
- ObjekttypenEtagenwohnung, Wohnung
- AdresseEmmastraße 1
 40227 Düsseldorf
- Etage1
- Etagen im Haus3
- Wohnfläche ca.75,28 m²
- Zimmer3
- Schlafzimmer1
- Badezimmer1
- HeizungsartZentralheizung
- Wesentlicher EnergieträgerGas
- Baujahr1928
- Letzte Modernisierung1992
- AusstattungStandard
- Statusvermietet
- Käuferprovision3,57 inkl. MwSt.
- Kaufpreis255.900 EUR
Ausstattung / Merkmale
- ✓ Balkon/Terrasse
- ✓ Keller
Energieausweis
- Energieausweisnicht vorhanden
Objektbeschreibung
Verkauft wird hier eine charmante 3-Zimmer-Wohnung im schönen Oberbilk.
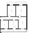
Die Wohnung bietet eine praktische Raumaufteilung: Man betritt einen Flur, von dem aus man in alle Zimmer gelangt, außer ins Kinderzimmer, das durch das Wohnzimmer erreichbar ist. Ein Umbau wäre denkbar, um die Raumaufteilung noch flexibler und an individuelle Wünsche anzupassen.
Die hohen Decken und der charakteristische Altbau verleihen der Wohnung ein besonderes Wohngefühl und unterstreichen den charmanten Charakter des Apartments. Es befindet sich in einem schönen Eckhaus auf der Emmastraße 1, das durch seine ansprechende Altbaufassade auffällt.
Diese Kombination aus historischem Flair und Funktionalität macht die Wohnung zu einer attraktiven Kapitalanlage.
Kaltmiete beträgt 740,65€.
Lage
Oberbilk ist ein dynamischer Stadtteil im Herzen von Düsseldorf, der sich durch
 eine perfekte Kombination aus zentraler Lage und angenehmer Wohnqualität
 auszeichnet. Die hervorragende Anbindung an den öffentlichen Nahverkehr
 sorgt für schnelle Verbindungen in die Innenstadt und zu anderen Stadtteilen,
 was Oberbilk zu einem idealen Wohnort für Pendler macht.
 Die abwechslungsreiche Infrastruktur mit zahlreichen Geschäften, Cafés und
 Restaurants bietet eine hohe Lebensqualität und ermöglicht es, den Alltag direkt
 vor der Haustür zu gestalten. Der Stadtteil ist von einer bunten Mischung aus
 modernen Wohnanlagen und historischen Gebäuden geprägt, die ihm ein
 charmantes und vielseitiges Flair verleihen. Besonders beliebt ist der Volksgarten,
 der mit seinen weitläufigen Grünflächen und Freizeitmöglichkeiten eine perfekte
 Erholung vom städtischen Trubel bietet.
 Oberbilk ist ein lebendiger Ort, der sowohl für junge Leute als auch für Familien
 eine attraktive Anlaufstelle darstellt und durch seine kulturelle Vielfalt und das
 urbane Leben überzeugt. Wer einen zentralen und gleichzeitig entspannten
 Wohnort in Düsseldorf sucht, findet in Oberbilk ein perfektes Zuhause.















