*INVESTIEREN & GENIEßEN* – TOP LAGE IN UNTERBILK
40219 Düsseldorf, Erdgeschosswohnung zum Kauf
Kontaktdaten
- NameHerr David Ziegler
- AnschriftAchenbachstr. 138
40237 Düsseldorf - Mobil
Objektdaten
- Objekt-ID167050296
- ObjekttypenErdgeschosswohnung, Wohnung
- AdresseBenzenbergstr. 52
40219 Düsseldorf - EtageEG
- Etagen im Haus6
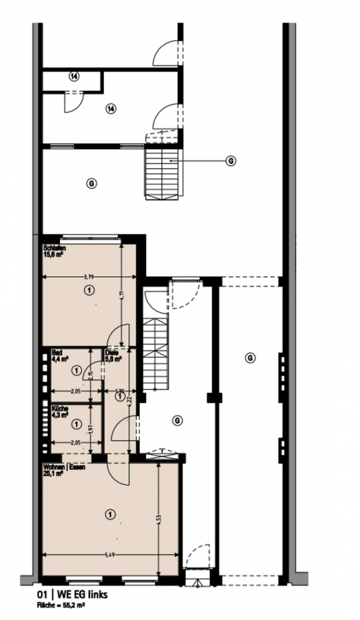
- Wohnfläche ca.55,20 m²
- Zimmer2
- Schlafzimmer1
- Badezimmer1
- HeizungsartEtagenheizung
- Wesentlicher EnergieträgerGas
- Baujahr1956
- Letzte Modernisierung2019
- Zustandgepflegt
- AusstattungStandard
- Statusvermietet
- Käuferprovision2,98 % inkl. MwSt.
- Kaufpreis179.000 EUR
Ausstattung / Merkmale
- ✓ Keller
Energieausweis
- EnergieausweistypVerbrauchsausweis
- Ausstellungsdatumnach dem 1.5.2014
- Baujahr lt. Energieausweis1956
- PrimärenergieträgerGas
- Endenergieverbrauch93,30 kWh/(m²·a)
- EnergieeffizienzklasseC
Objektbeschreibung
Beschreibung
Super Lage in Nähe der Lorettostraße und der Bilker Arkaden.
Auch die Wohnung selbst ist gepflegt und wird durch die Mieter in einem guten Zustand gehalten. 2019 wurde die Wohnung renoviert.
Es besteht ein Mietsteigerungspotenzial in der Zukunft, da die mögliche Vergleichsmiete deutlich höher liegt.
Die 2 Zimmer Wohnung ist gut geschnitten, da alle Zimmer vom Flur abgehen. Dadurch erzielen Sie den maximalen Wohnkomfort.
Durch die Aufteilung des Hauses bekommen die Mieter einen 8-jährigen Mietschutz. Daher ist die Wohnung vorerst als Investment geeignet.
Ausstattung
Zur Ausstattung des Hauses und der Wohnung gehört:
- ca. 55,20 m² Wohnfläche
- Gasetagenheizung
- Energieklasse: C
- Treppenhaus gestrichen 2025
- 2 Zimmer Wohnung
- alle Zimmer vom Flur abgehend
- aktuell vermietet
- Nähe der Lorettostraße
- Kellerraum vorhanden
- doppelverglaste Kunststofffenster
- Baujahr Gebäude ca. 1956
Sonstiges
Wenn Sie an dem Objekt interessiert sind, senden Sie uns bitte eine Anfrage über den Button "E-Mail".
Wir melden uns schnellstmöglich mit weiteren Infomationen bei Ihnen.
Lage
Das Objekt befindet sich zentral gelegen in Düsseldorf Unterbilk.
Von hier aus gelangen Sie zu vielen Geschäften des täglichen Bedarfs.
Verschiedene Supermärkte, Ärzte, Restaurants und Kaffes sind fußläufig erreichbar.
In den Bilker Arkaden finden Sie außerdem viele Szeneläden und eine große Auswahl an Gastronomie und Einkaufsgeschäften.
Auch die öffentlichen Verkehrsmittel stehen Ihnen in unmittelbarere Umgebung zur Verfügung.
Der bekannte Medienhafen befindet sich nur ein paar Straßen weiter.





















