-I| SCHNAPPER || Studio zu Top-Konditionen || PEMPELVESTMENT |I-
40477 Düsseldorf, Dachgeschosswohnung zum Kauf
Kontaktdaten
- NameHerr Ivan Schirm
- AnschriftAchenbachstr. 138
40237 Düsseldorf - Mobil
Objektdaten
- Objekt-IDIVI-AG25-WE15-48091275
- ObjekttypenDachgeschosswohnung, Wohnung
- AdresseAugustastraße 25
40477 Düsseldorf - Etage5
- Etagen im Haus5
- Wohnfläche ca.20 m²
- Zimmer1
- Schlafzimmer1
- Badezimmer1
- HeizungsartZentralheizung
- Wesentlicher EnergieträgerGas
- Baujahr1956
- Zustandsanierungsbedürftig
- AusstattungStandard
- Statusvermietet
- Außenstellplatz15.000 EUR (Anzahl: 1)
- Käuferprovision2,98 inkl. MwSt.
- Kaufpreis109.000 EUR
Ausstattung / Merkmale
- ✓ Keller
Energieausweis
- Energieausweiswird bei Besichtigung vorgelegt
Objektbeschreibung
Beschreibung
UNSER NEUPROJEKT PEMPELVESTMENT
Im beliebten Stadtteil Pempelfort steht eine kostengünstige 2-Zimmerwohnung mit optimalen Voraussetzungen für die Vermietung & Eigennutzung zum Verkauf.
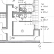
- DG
- 10m2
- 1-Zimmerwohnung
Ausstattung
- zentrale & sehr beliebte Wohnlage in Pempelfort
- gepflegtes Haus mit regelmäßigen Instandhaltungsmaßnahmen
- ideale Raumaufteilung
- doppelverglasten Wärmedämmfenstern
- Nahgelegene Einkaufsmöglichkeiten, Gastronomie & Parks
- Beste ÖPNV-Anbindung
- Attraktive Konditionen
Sonstiges
Unsere Anzeige hat Ihr Interesse geweckt?
Sehr gerne lassen wir Ihnen ein aussagekräftiges Exposé mit allen Zahlen und Fakten zukommen. Die Vereinbarung eines individuellen Besichtigungstermins ist aktuell auch kurzfristig möglich.
Zögern Sie bitte nicht und schreiben oder rufen Sie uns direkt an! Wir stehen Ihnen jederzeit mit Rat und Tat zur Verfügung!
Lage
Die Wohnung zeichnet sich durch seine zentrale Lage im schönen Pempelfort aus.
Shoppen, Flanieren & Spazieren
Direkt um die Ecke findet man zahlreiche Geschäfte des täglichen Bedarfs wie Supermärkte, Bäcker, Friseure u.v.m. Mit der beliebten Einkaufsstraße Nordstraße steht Ihnen ein breites Einzelhandelangebots in der direkten Nachbarschaft zur Verfügung und lädt zum Flanieren ein. Für ein reichhaltiges und abwechslungsreiches gastronomisches Angebot sorgen die zahlreichen Restaurants & Bars rund um die Altstadt
Um die Seele baumeln zu lassen, erreichen Sie in wenigen Minuten mit dem Rheinwiesen und dem Hofgarten die grüne Lunge der Innenstadt.
Von der Haltestelle Nordstraße gelangt man mit öffentlichen Verkehrsmitteln zügig ins Stadtzentrum und macht ein Auto fast überflüssig. Hierbei stehen sowohl Stadtbusse wie auch Straßen- und U-Bahnen zur Verfügung.









