**PREMIUM-STANDORT IHRE 3-ZIMMER-WOHNUNG**
40477 Düsseldorf, Dachgeschosswohnung zum Kauf
Kontaktdaten
- NameHerr Hadi Bitar
- AnschriftAchenbachstr. 138
40237 Düsseldorf - Telefon
Objektdaten
- Objekt-ID166962981
- ObjekttypenDachgeschosswohnung, Wohnung
- AdresseLennéstr. 16
40477 Düsseldorf - Etage4
- Etagen im Haus4
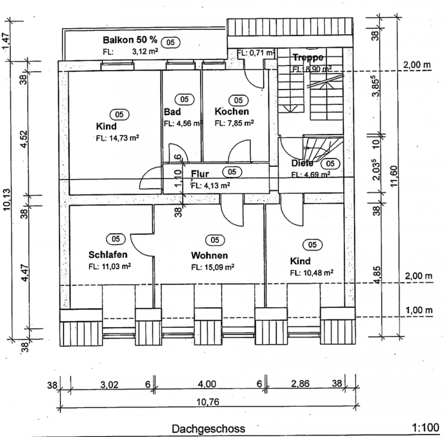
- Wohnfläche ca.76,39 m²
- Nutzfläche ca.21,30 m²
- Zimmer3
- Schlafzimmer3
- Badezimmer1
- HeizungsartZentralheizung
- Baujahr1952
- AusstattungStandard
- Statusvermietet
- Käuferprovision3,57 inkl. MwSt.
- Hausgeld400,00 EUR
- Kaufpreis398.000 EUR
Ausstattung / Merkmale
- ✓ Barrierefrei
- ✓ Keller
Energieausweis
- EnergieausweistypBedarfsausweis
- Ausstellungsdatumnach dem 1.5.2014
- Baujahr lt. Energieausweis1952
- PrimärenergieträgerErdgas leicht
- Endenergiebedarf102,00 kWh/(m²·a)
- EnergieeffizienzklasseD
Objektbeschreibung
Beschreibung
Im begehrten, zentralen und äußerst beliebten Stadtteil Pempelfort erwartet Sie eine perfekt geschnittene 3-Zimmer-Wohnung mit einer Gesamtfläche von 76,39 m² plus einem Dachboden von 21 m². Die optimale Raumaufteilung sorgt dafür, dass alle Zimmer bequem vom Flur aus begehbar sind, was eine klare, wohnliche Struktur und maximale Flexibilität garantiert.
Besonderes Highlight ist der Spitzboden, der zur Wohnung gehört. Dieser kann flexibel als Büro- oder Lagerfläche genutzt werden. Beachten Sie, dass es sich hierbei um nicht wohnzweckmäßig ausgebaute Räume handelt.
Das Haus wurde in Eigentumswohnungen aufgeteilt; daher genießen die Mieter einen 8-jährigen Kündigungsschutz
Ausstattung
Das gepflegte Haus überzeugt durch robuste Substanz ohne Reparaturstau und eine ideale Raumaufteilung, die flexibel nutzbar ist.
Die Wohnung verfügt über doppelt verglaste Fenster, sorgt so für eine ruhige und angenehme Wohlfühlatmosphäre.
Sonstiges
Gerne laden wir Sie ein, die Wohnung persönlich zu besichtigen und sich selbst von ihrer Qualität und ihrem Charme zu überzeugen.
Wir freuen uns auf Ihren Kontakt!
Lage
Die Wohnung besticht durch ihre zentrale Lage im beliebten Düsseldorfer Stadtteil Pempelfort. In unmittelbarer Nähe finden sich zahlreiche Geschäfte des täglichen Bedarfs wie Supermärkte, Bäckereien, Friseure und vieles mehr. Die bekannte Einkaufsstraße Nordstraße bietet ein vielfältiges Einzelhandelsangebot direkt vor der Haustür und lädt zum entspannten Bummeln ein.
Für kulinarische Abwechslung sorgen die zahlreichen Restaurants und Bars rund um die nahegelegene Altstadt. Wer Erholung im Grünen sucht, erreicht in wenigen Minuten die Rheinwiesen sowie den Hofgarten.
Auch die Haltestelle Lennestraße ist schnell erreichbar und sorgt mit Bus-, Straßenbahn- und U-Bahn-Anbindungen für eine optimale Verbindung ins Stadtzentrum, sodass ein Auto kaum erforderlich ist.



















