***Attraktive Gewerbefläche mit Potenzial für Loft-Wohnräume***
50668 Köln, Bürohaus zum Kauf
Kontaktdaten
- NameHerr Hadi Bitar
- AnschriftAchenbachstr. 138
40237 Düsseldorf - Telefon
Objektdaten
- Objekt-ID164079741
- ObjekttypenBüro/Praxis, Bürohaus
- AdresseDomstr. 58
50668 Köln - Bürofläche ca.336,90 m²
- HeizungsartEtagenheizung
- Wesentlicher EnergieträgerGas
- Baujahr1962
- Zustandgepflegt
- AusstattungStandard
- Käuferprovision2,98 inkl. MwSt.
- Kaufpreis410.000 EUR
Ausstattung / Merkmale
- ✓ Keller
Energieausweis
- Energieausweiswird bei Besichtigung vorgelegt
Objektbeschreibung
Beschreibung
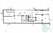
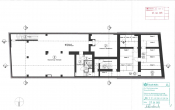
Diese Gewerbeeinheit ist derzeit für eine Umnutzung in Wohnräume vorgesehen und bietet daher vielfältige Möglichkeiten, sie ganz nach Ihren Wünschen zu gestalten. Das Objekt besitzt ein großes Potenzial, um individuell umgebaut zu werden. Im Untergeschoss befindet sich eine großzügige Lagerfläche, die auch in ein Atelier umgewandelt werden kann – ideal für kreative Tätigkeiten oder als Arbeitsraum.
Ein besonderes Highlight ist die Möglichkeit, im Hinterhof einen Licht- und Luftschacht in das Untergeschoss zu integrieren. Das bedeutet, dass Tageslicht in den Raum gelangen kann und eine gute Belüftung gewährleistet ist. Für diese Maßnahme liegt bereits eine Genehmigung vom Bauamt vor, was den Umbau deutlich erleichtert und beschleunigt.
Kurz gesagt: Hier haben Sie die Chance, eine flexible, helle Wohn- oder Arbeitsfläche mit viel Raum für Ihre individuellen Ideen zu schaffen. Wenn Sie möchten, helfen wir Ihnen gern bei der Planung oder bei weiteren Fragen!
Sie können auch die Einheit weiterhin als stilles Gewerbe betreiben.
Ausstattung
Die Beispielbilder wurden anhand der Originalfotos mit Hilfe von KI erstellt, um Ihnen eine anschauliche Vorstellung der Wohnräume nach dem Umbau zu ermöglichen.
Lage
Die Domstraße 58 liegt mitten im Zentrum von Köln, ganz nah am Kölner
Dom, einem der bekanntesten Wahrzeichen der Stadt. Die Straße ist super zentral und gut erreichbar, denn direkt in der Nähe gibt es viele Geschäfte, Restaurants und Cafés. Besonders die Hohe Straße, eine der größten Einkaufsstraßen, ist nicht weit entfernt vom Kölner Hauptbahnhof ist man in wenigen Minuten dort, und auch der Rhein ist gleich um die Ecke. Wer mit
dem Zug oder der U-Bahn unterwegs ist, kommt hier also schnell hin. Die Gegend ist nicht nur bei Touristen beliebt, sondern auch bei Geschäftsreisenden, weil hier viele Büros und Hotels in der Nähe sind. Die Domstraße selbst ist nicht besonders lang oder laut, aber durch die super Lage ist sie trotzdem ziemlich belebt. Hier hat man zu Fuß schnellen Zugang zu fast allem, was man in Köln sehen oder machen möchte. Die Straße ist eine Mischung aus alten und modernen Gebäuden, was ihr einen ganz eigenen Charme gibt.
Flughafen 35 min | Fernbahnhof 5 min | Autobahn 10 min | Bus 5 min
























