Londoner Style Apartment – TOLLE 3 ZIMMER WOHNUNG IM BELIEBTEN STADTTEIL FLINGERN NORD
40233 Düsseldorf, Souterrainwohnung zum Kauf
Kontaktdaten
- NameHerr Hadi Bitar
- AnschriftAchenbachstr. 138
40237 Düsseldorf - Telefon
Objektdaten
- Objekt-ID166625738
- ObjekttypenSouterrainwohnung, Wohnung
- AdresseAckerstr. 90
40233 Düsseldorf - Etagen im Haus4
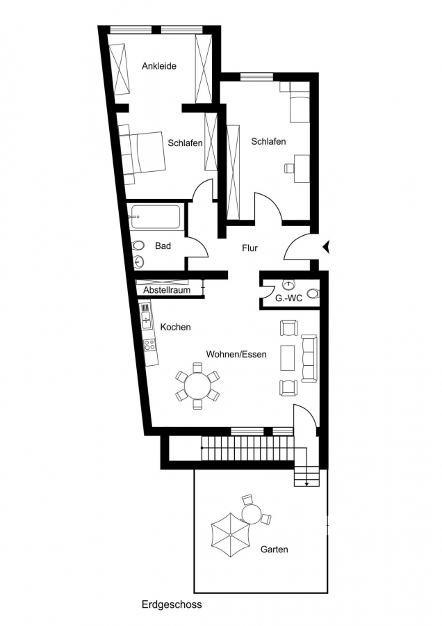
- Wohnfläche ca.102,79 m²
- Zimmer3
- Schlafzimmer2
- Badezimmer1
- HeizungsartZentralheizung
- Wesentlicher EnergieträgerGas
- Baujahr1968
- Letzte Modernisierung2015
- Zustandmodernisiert
- Ausstattunggehoben
- Käuferprovision3,57 % inkl. MwSt.
- Kaufpreis412.000 EUR
Ausstattung / Merkmale
- ✓ Garten/Gartennutzung
- ✓ Gäste-WC
- ✓ Keller
- ✓ Personenaufzug
Energieausweis
- Energieausweiswird bei Besichtigung vorgelegt
Objektbeschreibung
Beschreibung
Diese attraktive 3-Zimmer-Souterrainwohnung mit ca. 102,79 m² Wohnfläche bietet eine hervorragende Gelegenheit, in eine wertstabile Immobilie im gefragten Düsseldorfer Stadtteil Flingern zu investieren. Die großzügige Raumaufteilung schafft vielfältige Nutzungsmöglichkeiten – ideal für Eigennutzer wie auch für Kapitalanleger.
Das Mehrfamilienhaus wurde im Jahr 2015 umfassend kernsaniert und präsentiert sich in einem sehr gepflegten, zeitgemäßen Zustand. Für Sie bedeutet das: Planungssicherheit und keine absehbaren zusätzlichen Investitionen in die Bausubstanz.
Die Immobilie wurde kürzlich neu aufgeteilt; die Wohnungseigentümergemeinschaft befindet sich derzeit in Gründung. Dadurch profitieren Käufer von klaren Strukturen und einem modernen Eigentumskonzept von Beginn an.
Die begehrte Lage in Flingern überzeugt durch eine ausgezeichnete Infrastruktur, kurze Wege in die Innenstadt sowie ein lebendiges Umfeld mit hoher Nachfrage ein entscheidender Faktor für nachhaltige Wertentwicklung.
Ausstattung
- Bodenbelag: Eiche Parkett/Dielen
- Neuwertige Fenster-3-fach-Verglasung
- großer Wohnen / Kochen / Essen Bereich (Eingang zur Wohnung vorne)
- eigene Terrasse / kleiner Garten vor dem Objekt
- Bad mit Wanne, Waschtisch, WC etc.
- Gäste-WC
- Abstellraum in der Wohnung
- Eigener Kellerraum
Sonstiges
Lassen Sie sich diese Gelegenheit nicht entgehen und vereinbaren Sie einen Besichtigungstermin!
Lage
Die Wohnung liegt im immer beliebter werdenden, trendigen Stadtteil Flingern-Nord.
Die Nähe zur Innenstadt, viele große Bäume und schöne Altbauten, machen dies zu einem beliebten Wohngebiet.
Alle Annehmlichkeiten des modernen Stadtlebens haben Sie hier ganz in der Nähe, wie z.B Einkaufmöglichkeiten für den täglichen Bedarf, gemütliche Cafés und internationale Restaurants, sowie öffentliche Verkehrmöglichkeiten.
Ganz in der Nähe dieser Wohnung befinden sich zahlreiche Haltestellen des Öffentlichen Nahverkehrs z. B.:
Haltestelle Birkenstraße:
Straßenbahn-Linie 708 und 709
Buslinie: 834 und NE2
Haltestelle Düsseldorf-Wehrhahn:
S-Bahn-Linie S1, S6, S11

















