-I| TRAUM-TERRASSE || Toll geschnittene 3-Zi-Wohnung || City Appartements |I-
40215 Düsseldorf, Penthousewohnung zum Kauf
Kontaktdaten
- NameHerr Ivan Schirm
- AnschriftAchenbachstr. 138
40237 Düsseldorf - Mobil
Objektdaten
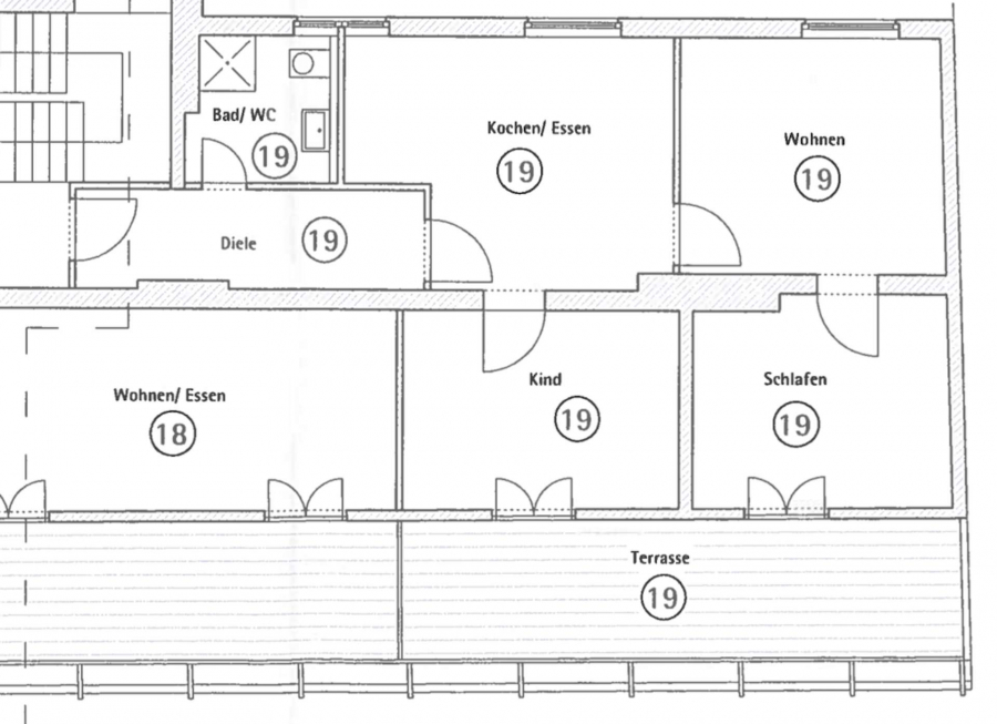
- Objekt-IDIVI-SR18-WE19-47190647
- ObjekttypenPenthousewohnung, Wohnung
- AdresseScheurenstr. 18
40215 Düsseldorf - Etage5
- Etagen im Haus5
- Wohnfläche ca.70 m²
- Zimmer3
- Schlafzimmer2
- Badezimmer1
- HeizungsartEtagenheizung
- Wesentlicher EnergieträgerGas
- Baujahr1953
- Zustandgepflegt
- Statusvermietet
- Käuferprovision2,38 inkl. MwSt.
- Kaufpreis259.000 EUR
Ausstattung / Merkmale
- ✓ Balkon/Terrasse
- ✓ Keller
Energieausweis
- Energieausweiswird bei Besichtigung vorgelegt
Objektbeschreibung
Beschreibung
Projekt City Appartements
Im beliebten Stadtteil Friedrichstadt steht eine sehr gut geschnittene 3-Zimmerwohnung im 5. OG mit besten Voraussetzungen für die Vermietung oder Eigenbedarf zum Verkauf.
- 5. OG
- Straßen- und Hofseite
- 70 m2
- 3-Zimmerwohnung
- vermietet für € 710,50 kalt
Laufende Modernisierungsmaßnahme am Dach
- Teilneueindeckung
- Teilerneuerung durch großflächigen Einbau von Dachgauben
- Doppeldämmung
- 3-fach-isolierverglaste Dachfenster
- RMA-Anlage
- Erhebliche Verbesserung der Energieeffizienz
Für die Bestandsmieter liegt ein achtjähriges Sonderkündigungsschutz auf Eigenbedarf vor, daher ist die Einheit primär für Kapitalanleger von Interesser.
Ausstattung
- verkehrsberuhigte und grüne Seitenstraße nur einen Steinwurf von Königsallee, Immermannstraße & Hauptbahnhof entfernt
- gepflegtes Haus mit regelmäßigen Instandhaltungsmaßnahmen
- frisch saniertes Treppenhaus (Beleuchtung, Wände, Geländer, Türen und Zargen)
- ideale Raumaufteilung
- doppelverglaste Wärmedämmfenster
- Nahgelegene Einkaufsmöglichkeiten, Gastronomie & Parks
- Beste ÖPNV-Anbindung
- Attraktive Konditionen
Sonstiges
Unsere Anzeige hat Ihr Interesse geweckt?
Sehr gerne lassen wir Ihnen ein aussagekräftiges Exposé mit allen Zahlen und Fakten zukommen. Die Vereinbarung eines individuellen Besichtigungstermins ist aktuell auch kurzfristig möglich.
Zögern Sie bitte nicht und schreiben oder rufen Sie uns direkt an! Wir stehen Ihnen jederzeit mit Rat und Tat zur Verfügung!
Lage
Die Wohnung zeichnet sich durch seine ruhige und zugleich zentrale Lage in Friedrichstadt aus.
Shoppen, Flanieren & Spazieren
Direkt um die Ecke findet man zahlreiche Geschäfte des täglichen Bedarfs wie Supermärkte, Bäcker, Friseure u.v.m. Mit der beliebten Einkaufsstraßen Schadowstraße steht Ihnen ein breites Einzelhandelangebot in der direkten Nachbarschaft zur Verfügung und lädt zum Flanieren ein. Für ein reichhaltiges und abwechslungsreiches gastronomisches Angebot sorgen die zahlreichen Restaurants & Bars rund um die Immermann- & Oststraße.
Um die Seele baumeln zu lassen, erreichen Sie in wenigen Minuten mit dem Rheinufer und der Königsallee die grüne Lunge der Innenstadt.
Von der Haltestelle Stresemannstraße und nicht zuletzt Hauptbahnhof gelangt man mit öffentlichen Verkehrsmitteln zügig in alle Himmelsrichtungen der Stadt und macht ein Auto fast überflüssig. Hierbei stehen sowohl Stadtbusse wie auch Straßen- und U-Bahnen zur Verfügung.















