***Renoviertes 2-Zimmer-Apartment mit schicker Einbauküche***
45141 Essen, Dachgeschosswohnung zur Miete
Kontaktdaten
- NameHerr Hadi Bitar
- AnschriftAchenbachstr. 138
40237 Düsseldorf - Telefon
Objektdaten
- Objekt-ID166542952
- ObjekttypenDachgeschosswohnung, Wohnung
- AdresseErnestinenstr. 19
45141 Essen - Etage3
- Etagen im Haus3
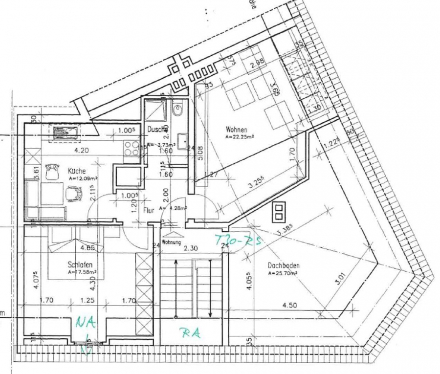
- Wohnfläche ca.65 m²
- Nutzfläche ca.25 m²
- Zimmer2
- Schlafzimmer2
- Badezimmer1
- KücheEinbauküche
- HeizungsartZentralheizung
- Wesentlicher EnergieträgerGas
- Zustandteil-/vollrenoviert
- Haustierenach Vereinbarung
- Kaution3 Nettokaltmieten
- Kaltmiete750,00 EUR
- Nebenkosten200,00 EUR
- Warmmiete950,00 EUR
Ausstattung / Merkmale
- ✓ Einbauküche
- ✓ Keller
- ✓ WG-geeignet
Energieausweis
- Energieausweiswird bei Besichtigung vorgelegt
Objektbeschreibung
Beschreibung
Frisch sanierte Dachgeschosswohnung in Essen-Stoppenberg mit Gesamtfläche von 65 m² im Herzen von Stoppenberg, direkt am Barbarossaplatz, umliegende Geschäfte in Laufnähe.
Highlights: lichtdurchflutetes Wohnzimmer, großzügige Küche mit Einbauküche, Schlafzimmer; alle Räume vom Flur begehbar.
Die Wohnung verfügt über Nutzfläche 26 m², ideal als Abstellraum, Fitness- oder Hobbyraum usw. nutzbar.
Die Wohnung befindet sich noch in der Renovierung, planmäßige Bezugsfertigkeit ab dem 15.04.2026.
Ausstattung
Die Wohnung verfügt über neue Einbauküche mit E-Geräten bietet einen großen und viel Stauraum.
Bodenbelag: Fliesen, Vinyl / PVC
Hausmeisterservice sowie Treppenhausreinigung inbegriffen
Sonstiges
Die Mindestmietzeit beträgt 2 Jahre.
In den Nebenkosten sind alle Kosten enthalten, außer persönlichem Stromverbrauch, der vom Mieter direkt an den Anbieter zu zahlen sind.
Für den Abschluss eines Mietvertrages benötigen wir:
- Selbstauskunft (erhalten Sie von uns)
- Letzten 3 Gehaltsnachweise bzw. Einkommensnachweise
- aktuelle Schufaauskunft
- Personalausweis oder Reisepass
Ich freue mich, auf Ihre Anfrage und ein persönliches Kennenlernen bei der Besichtigung!
Lage
Die Immobilien befinden sich im Nordosten der Stadt Essen, im Stadtteil Stoppenberg. Die berühmte Zeche Zollverein, ein UNESCO-Welterbe und bedeutendes Kulturdenkmal, ist etwa vier Autominuten entfernt. Stoppenberg bietet eine ausgezeichnete
Verkehrsanbindung:
Die Straßenbahnlinie 107 sowie mehrere Buslinien und Haltestellen befinden sich in unmittelbarer Nähe, was eine gute Verbindung zu anderen Stadtteilen Essens gewährleistet. Zudem sind die Autobahnen A40 und A42 leicht erreichbar, wodurch eine schnelle Anbindung an das regionale Autobahnnetz möglich ist.
Im Stadtteil Stoppenberg gibt es mehrere Schulen und Kindergärten, darunter die Grundschule Stoppenberg und die Gesamtschule Stoppenberg. Verschiedene Kindertagesstätten, wie der Kindergarten St. Georg, ergänzen das Bildungsangebot und machen den Stadtteil besonders attraktiv für Familien.
Stoppenberg bietet eine ausgewogene Mischung aus Wohngebieten und Grünflächen. Die Parkanlagen am Hangetal und das nahegelegene Naturschutzgebiet bieten zahlreiche Möglichkeiten zur Erholung und Freizeitgestaltung. Sportstätten wie der Hallo Park sind ebenfalls in der Nähe und bieten zusätzliche Freizeitmöglichkeiten für die Bewohner.












